











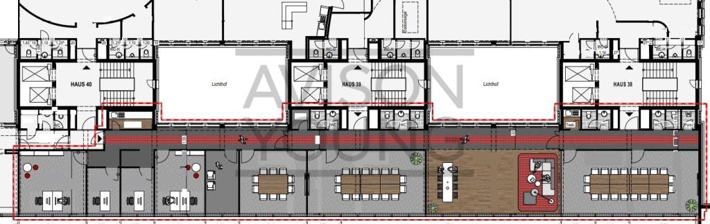
Bei dem angebotenen Objekt handelt es sich um ein modernes Bürogebäude, welches aus einem Büroriegel und einem Büroturm besteht. Das Gebäude wurde im Jahr 2002 fertiggestellt und seit dem stetig renoviert. Ein in Glas gehaltender Eingang empfängt Gäste und Mitarbeiter. Die Flächen bieten eine gehobene Ausstattung und können individuell für den Mieter, in Abstimmung mit dem Vermieter, ausgebaut werden. Dem Mieter steht ein durchgängiger Sicherheitsdienst und Concierge-Service zur Verfügung.
Alle vorstehend genannten Preise verstehen sich monatlich und jeweils zzgl. der gesetzl. USt.; die m²-Angaben sind Circa-Angaben.
Avison Young ist ein global agierendes Immobilienunternehmen, jetzt auch mit mehreren Standorten in Deutschland vertreten. Wir freuen uns auf Ihren Anruf, um gemeinschaftlich Ihr Anforderungsprofil im Detail aufzunehmen. Sicherlich finden wir auch IHR Wunschobjekt!
Bitte füllen Sie alle notwendigen Kontaktdaten von Ihnen in der Anfrage aus, sodass wir diese schnellstmöglich bearbeiten können.
Unsere AGB finden Sie im Anhang.
Dieses Angebot ist provisionsfrei für den Mieter ab einer Vertragslaufzeit von 60 Monaten.
Das Bürogebäude befindet sich in der HafenCity, nur wenige Schritte von der Elbphilharmonie entfernt. Fußläufig kann in kurzer Zeit ein großes Angebot an Restaurants erreicht werden, wie zum Beispiel das 300 Meter entfernte "Tai Tan" oder das "hafenhunger". Im nahe gelegenen "Edeka" Supermarkt können Einkäufe für den täglichen Bedarf erledigt werden. Des Weiteren gelangt man in wenigen Gehminuten zu der Speicherstadt und den Magellan-Terrassen.