










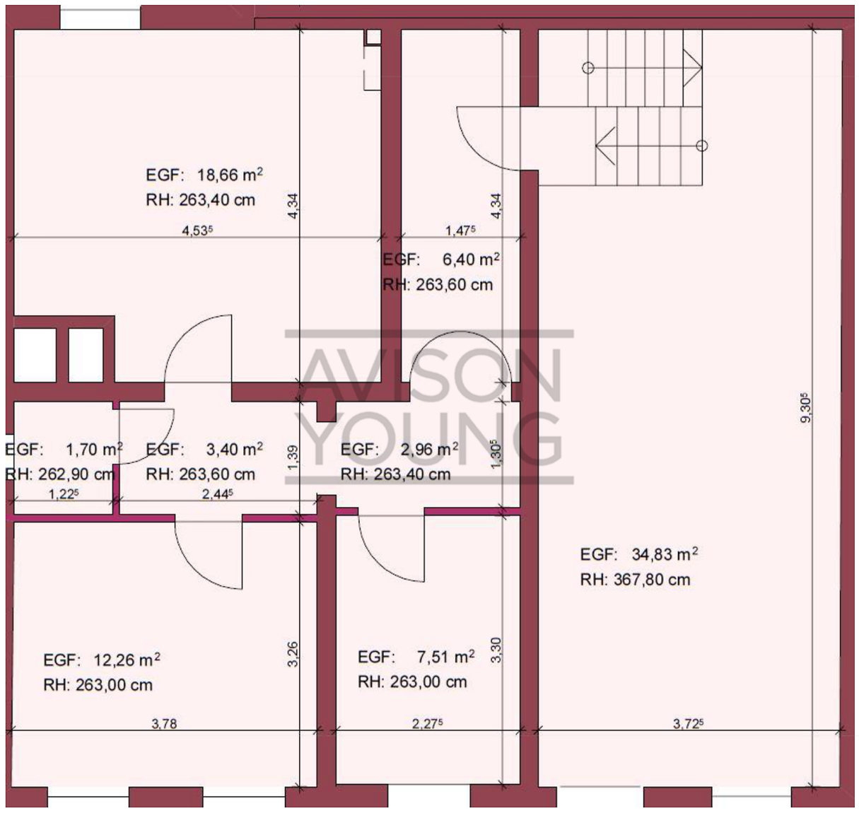
Die vakante Mieteinheit befindet sich in einem Innenhof eines charmantes Gewerbehofes. Erschlossen wird der Innenhof über eine zentrale Einfahrt. Der Zugang zur Mieteinheit erfolgt über ein gepflegtes Treppenhaus. Großzügige Fensterfronten sorgen ganztägig für eine natürliche Belichtung und schaffen ein angenehmes Arbeitsklima. Eine Pantry, getrennte Sanitäranlagen sowie eine EDV Verkabelung über Kabelkanäle gehören zur Grundausstattung der Mieteinheit. Ebenso ein gepflegter Teppich- und Vinylboden als Bodenbelag. Weitere Ausstattungswünsche können in enger Absprache mit der Eigentümerseite berücksichtigt werden. Der ökonomische Grundriss kann den persönlichen Bedürfnissen nach angepasst werden. Die Anmietung eines Stellplatzes ist gegeben.
Alle vorstehend genannten Preise verstehen sich monatlich und jeweils zzgl. der gesetzl. USt.; die m²-Angaben sind Circa-Angaben.
Avison Young ist ein global agierendes Immobilienunternehmen, jetzt auch mit mehreren Standorten in Deutschland vertreten. Wir freuen uns auf Ihren Anruf um gemeinschaftlich Ihr Anforderungsprofil im Detail aufzunehmen. Sicherlich finden wir auch IHR Wunschobjekt!
Bitte füllen Sie alle notwendigen Kontaktdaten von Ihnen in der Anfrage aus, sodass wir diese schnellstmöglich bearbeiten können.
Unsere AGBs finden Sie im Anhang.
Dieses Angebot ist provisionsfrei für den Mieter ab einer Vertragslaufzeit von 60 Monaten.
Das Objekt befindet sich in zentraler Lage im geographischen Mittelpunkt Hamburgs, nahe des Einkaufszentrums "Hamburger Meile". Bedürfnisse des täglichen Bedarfs werden über das Einkaufszentrum gedeckt. Zahlreiche Restaurants verschiedenster Art sind fußläufig zu erreichen. Die Anbindung an den öffentlichen Nahverkehr ist über die U-Bahnstation "Mundsburg" gegeben.