






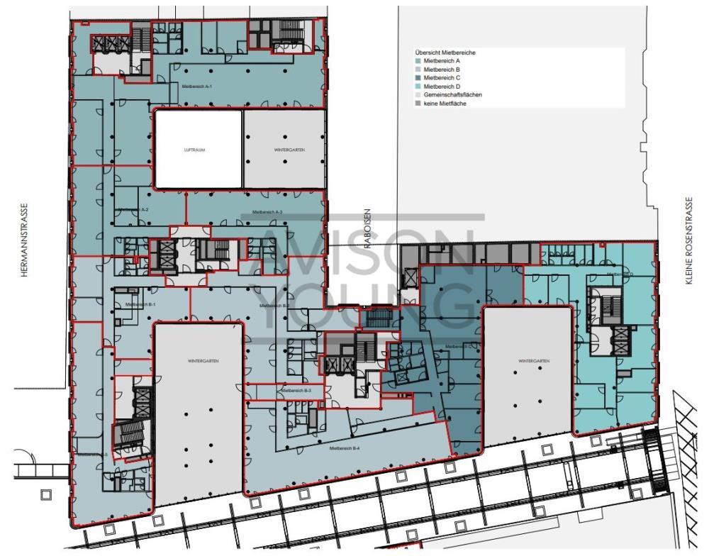
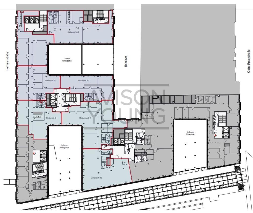
Das Bürogebäude wurde im Jahre 2005 erbaut. Die Mietflächen weisen eine Raumhöhe von überwiegend 2,80 m auf und sind auf natürliche Weise hell belichtet. Stellplätze können in der hauseigenen Tiefgarage angemietet werden. Die hochmodernen Büroflächen können, je nach Mieterwunsch, als Einzel-, Team- oder Open-Space-Arbeitsplätze ausgebaut werden. Des Weiteren führen die Aufzüge direkt zu den einzelnen Büroetagen.
Alle vorstehend genannten Preise verstehen sich monatlich und jeweils zzgl. der gesetzl. USt.; die m²-Angaben sind Circa-Angaben.
Avison Young ist ein global agierendes Immobilienunternehmen, jetzt auch mit mehreren Standorten in Deutschland vertreten. Wir freuen uns auf Ihren Anruf, um gemeinschaftlich Ihr Anforderungsprofil im Detail aufzunehmen. Sicherlich finden wir auch IHR Wunschobjekt!
Bitte füllen Sie alle notwendigen Kontaktdaten von Ihnen in der Anfrage aus, sodass wir diese schnellstmöglich bearbeiten können.
Unsere AGB finden Sie im Anhang.
Dieses Angebot ist provisionsfrei für den Mieter ab einer Vertragslaufzeit von 60 Monaten.
Das Objekt liegt zwischen Jungfernstieg und Mönckebergstraße. In dem Gebäude befindet sich die bekannte Europa Passage, mit einer Vielfalt an Restaurants, wie z.B. das "dean&david". Einkaufsmöglichkeiten für den täglichen Bedarf bestehen im hauseigenen "REWE" Supermarkt. Durch die direkte Lage an der Alster, die Nähe zu mehreren Buslinien und der U-Bahn Station "Jungfernstieg",ist dieses Objekt ein optimaler Bürostandort für unterschiedliche Branchen.