




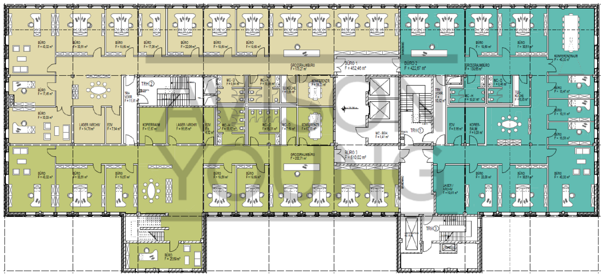
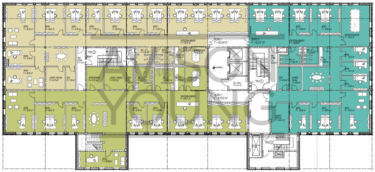
Alle vorstehend genannten Preise verstehen sich monatlich und jeweils zzgl. der gesetzl. USt.; die m²-Angaben sind Circa-Angaben.
Avison Young ist ein global agierendes Immobilienunternehmen, jetzt auch mit mehreren Standorten in Deutschland vertreten. Wir freuen uns auf Ihren Anruf, um gemeinschaftlich Ihr Anforderungsprofil im Detail aufzunehmen. Sicherlich finden wir auch IHR Wunschobjekt!
Bitte füllen Sie alle notwendigen Kontaktdaten von Ihnen in der Anfrage aus, sodass wir diese schnellstmöglich bearbeiten können.
Unsere AGB finden Sie im Anhang.
Dieses Angebot ist provisionsfrei für den Mieter ab einer Vertragslaufzeit von 60 Monaten.